Rent: ₹3,45,000 / month (Inclusive of maintenance)
3400 Sq.ft
Tenure: 11 months — 3 years

Overview

Located in the iconic Supertech Supernova Astralis, Sector 94 Noida, this expansive 3400 sq.ft office space for lease offers a premium environment for established businesses seeking scale and visibility.

Set along the Noida Expressway, opposite Okhla Bird Sanctuary Metro Station, the tower connects effortlessly to South Delhi and key corporate districts.

📄 Download Brochure
×

Get Brochure


Gallery


Key Specifications

This office can accommodate:

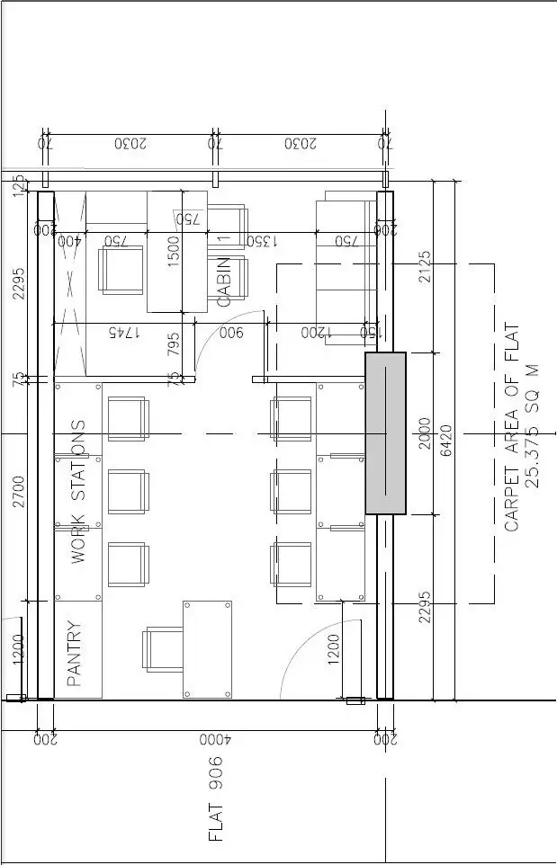
Carpet Area: ~2040 Sq.ft
Saleable Area: 514 Sq.ft
Ceiling Height: 10.5 ft.
Director Cabins: 2
Workstation: 40
Pantry: 1
Reception Area: 1
Conference Room: 1

Built to Grade-A standards with high-speed lifts, 24×7 security, and ample parking, Astralis combines modern infrastructure with a prestigious business address.

Its large floor plate, central location, and superior amenities make it one of the most sought-after commercial office spaces for lease in Noida.


Floor Plan

Supertech-Astralis-Office-Layout-For-Lease-3400-Sqft

Click image to enlarge — detailed plan included in brochure.


Amenities & Nearby

  • 8+ high-speed lifts, service lifts, podium retail
  • Reserved parking
  • Mahamaya Flyover — 2 mins, DLF Mall of India — 7 mins
  • 24x7 security and CCTV
  • Metro Station — Okhla Bird Sanctuary

Location


Frequently Asked Questions

The monthly rent is ₹3,45,000 — inclusive of maintenance.

Flexible leases: 11 months up to 3 years.

This unit provides 2 cabin and seating for up to 40 workstations.

Yes — the quoted rent is inclusive of maintenance.

Reserved parking is available; allocations vary by unit and developer policy.

Yes — schedule via the enquiry form or call +91 7053539335.

This listing is shown as fully furnished; confirm exact inventory before signing.

Yes — click "Virtual Walkthrough" to watch a YouTube walkthrough of the project.

Security deposit and monthly rent are typical; we share exact payment breakup on request.

Download from the "Download Brochure" button or request via the enquiry form.