Ready To Move Office — 2500 Sq.ft (Sale)
2500 Sq.ft
Price: ₹ 3.1 Crore (Bare Shell) 2500 Sq.ft Onwards*
Ownership: Resale

Overview

This 2500 sq.ft office space for sale in Supertech Supernova Astralis, Sector 94 Noida, is a rare opportunity to own premium workspace in one of NCR’s tallest commercial towers.

Set along the Noida Expressway, just 0 km from Delhi, the project offers a prestigious business address with unmatched metro and road connectivity.

📄 Download Brochure
×

Get Brochure


Gallery


Key Specifications

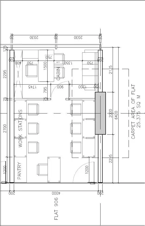
The bare-shell layout is designed to accommodate:

Carpet Area: ~1500 Sq.ft
Saleable Area: 2500 Sq.ft
Ceiling Height: 10.5 ft.
Private Cabins: 1-2
Workstation:15-25
Pantry: 1
Reception Area: 1
Conference Room: 1

Featuring world-class architecture, ample parking, modern MEP systems, and panoramic city views, Supernova Astralis stands out as a hub for progressive enterprises.

It’s the perfect choice for owners and investors seeking commercial office space for sale in Noida that combines long-term capital growth with strong leasing demand.


Floor Plan

Floor plan

Click image to enlarge — detailed plan included in brochure.


Amenities & Nearby

  • 8+ high-speed lifts, service lifts, podium retail
  • Reserved parking
  • Mahamaya Flyover — 2 mins, DLF Mall of India — 7 mins
  • 24x7 security and CCTV
  • Metro Station — Okhla Bird Sanctuary

Location


Frequently Asked Questions

The available unit in Supertech Supernova Astralis is 2500 sq.ft, located in Sector 94, Noida — ideal for compact business setups.

The 2500 sq.ft office is offered in bare shell condition. You can customize it for one large cabin, one pantry, and six workstations. However, we also have in Read to move office. Contact us +917053539335 for pricing and availability.

It’s in Sector 94, Noida — right on the Noida Expressway, opposite the Okhla Bird Sanctuary Metro Station, and 0 km from Delhi.

Price varies by floor and view. Call +91 7053539335 for current pricing and available offers.

Supertech Astralis offers Grade-A design, expressway visibility, and strong rental potential — ideal for business or investment.

High-speed lifts, power backup, CCTV, retail podium, F&B outlets, and dedicated parking for owners and visitors.

Yes, reserved and visitor parking spaces are available within the Supertech Astralis complex.

Yes. Schedule a site visit through our enquiry form or call our sales team at the number provided.

Basic KYC, booking amount, and sale agreement documents are required. Our team will guide you through the process.

Download the Supernova Astralis brochure or request it via the enquiry form for details on layout and pricing.